物件詳細 戸建 青森市
detailsDETAILS
戸建 三内丸山貸家
情報更新日:2026-04-02
ペット大歓迎♪大型犬も可♪敷金・礼金不要♪近隣スーパーまで徒歩6分♪
- 所在地
- 青森県 青森市 三内丸山
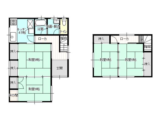
- 種別/間取り
- 戸建/4DK
- 月額賃料
- 68,000円/月
- 専有面積
- 80.19㎡
- バルコニー面積
- ─
- 共益費
- ─
- 管理費
- ─
- 敷金
- ─
- 礼金
- ─
本物件の内容や画像等は全て現況優先となります。
各画像は参考図となります。
| 交通機関 | バス 自衛隊宿舎入口バス停 徒歩3分 | ||
|---|---|---|---|
| 学区 | |||
| 詳細間取 | 4DK (1階:和6帖×1、1階:和8帖×1、2階:和6帖×2、1階:DK4.5帖) | ||
| 周辺施設 | |||
| 駐車場 | 敷地内 無料 | 建物構造 | 木造 地上2階建 |
| 駐車場複数台 | 不可 | 主要採光方向 | 不明 |
| 仲介料 | 74,800円 (1ヶ月相当) | 周辺環境 | |
| 保険又は共済 | 要加入 | 入居可能日 | 即入居可 |
| 保証金 | 築年月 | 昭和55年9月 | |
| 権利金 | 取引態様 | 仲介 | |
| 保証会社 | 利用必須 ROOMiD 初回:賃料総額の40% 月次:1.2% | ||
| その他費用 | |||
| トイレ | 洋式 独立 洗浄機能付 | 風呂 | 有 シャワー有 |
| 設備 | 上水道設備(公営) 下水道設備 TV付インターホン エアコン FFストーブ 下駄箱 洗濯機置場 照明器具 車庫 | ||
| 備考 | 保険加入2年間 保険料(参考) 20,000円 ペット飼育時:1匹につき賃料+3,000円 ペット可 普通賃貸借 ※同業他社による客付け可(手数料割合:自社50%/他社50%) | ||
| 取扱業者 |
(有)不動産ライフ 青森県知事免許(5)第3050号 青森県青森市古川2丁目9番13号 TEL:017-721-5588 FAX:017-721-5589 (公社)全日本不動産協会会員 東北地区不動産公正取引協議会加盟事業者 |
||













